|
NOT-AUS Relais (Meldung und Begrenzung) mit Busanschaltung
|
|
Kurzbeschreibung
|
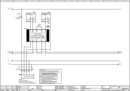
Ansicht Stromlaufplan
|
- Über NOT-AUS Wächter (wie Taster, Positionsschalter, Fußschalter, Lichtvorhänge, Lichtschranken etc.) kann das NOT-AUS Relais (bei gefährlichen Zuständen) ausgelöst werden.
- Der NOT-AUS Kreis wird permanent vom NOT-AUS Relais auf Drahtbruch und Kontaktverschleis überwacht.
- Kommt es zur Auslösung des NOT-AUS Relais, wird der Unterspannungsauslöser des Leistungsschalters, durch Unterbrechnung der Sicherheitskette, ausgelöst.
- Der DI meldet die Störung an die Steuerung.
- Von der Steuerung aus, kann (über einen DA) das NOT-AUS Relais (wenn gewollt, Brücke entfernen) entriegelt werden.
|
|
|
Anwendung
|
- Das NOT-AUS dient dazu im Notfall Prozesse oder Bewegungen anzuhalten, die gefahrbringend wurden.
|
|
|
|
Copyright © 1999 by MOStec GbR Jakobi Josef und Norbert
|
|