|
Offene Leistungsschalter in Festeinbau und Motorantrieb
|
|
Kurzbeschreibung
|
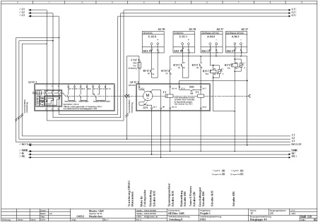
Ansicht Stromlaufplan
|
- Leistungsschalter sind technisch hochwertige Schaltgeräte mit integriertem Schutz für Motoren, Leitungen, Transformatoren und Generatoren.
- Über die Busanschaltung (zwei DI Schaltzustand und zwei DA Schalter "Ein" und "Aus") ist eine Fernsteuerung möglich.
|
|
|
Anwendung
|
- Energieverteilungen werden im einfachsten Fall mit einer Einspeisung versorgt. Aus sicherheits-, ökonomischen- oder technischen Gesichtspunkten kann es erforderlich sein, weitere Einspeisungen vorzusehen. Durch diese Erweiterung der Einspeisungen, verändern sich die Parameter der Anlage und können zum Beispiel bei den Kurzschlussleistungen, gegebene technische Verteilerdaten übersteigen. Weiterhin sind aus versorgungstechnischen Gründen gewisse Verteilerabschnitte von anderen Abschnitten im Fehlerfall mit Energie zu versorgen. Um die Kurzschlussströme in derartigen Anlagen leichter zu beherrschen und höhere Versorgungssicherheiten zu erreichen, werden einzelne Verbraucher bestimmten Sammelschienenabschnitten zugeordnet und durch Kupplungen verbunden oder getrennt, je nach Anforderung oder gewählter Fahrweise des Anlagenbetreibers.
|
|
|
|
Copyright © 1999 by MOStec GbR Jakobi Josef und Norbert
|
|